Unified Portfolio

One Portfolio Hub for All DRG Disciplines

We consolidated Precast, Rebar, Steel, Structural, and Mechanical HDPE portfolios into one professional mother page so teams can review all uploaded drawing packages from a single destination.

Mechanical HDPE Portfolio

Mechanical HDPE pipe drawing sets organized for fabrication, routing coordination, and field-ready execution.

Jump

Precast Detailing Portfolio

Component-level detailing and execution-ready DRG deliverables with practical installation clarity.

Jump

Rebar Detailing Portfolio

Fabrication-friendly reinforcement documentation with constructability-aware layout standards.

Jump

Steel Detailing Portfolio

Shop-grade steel, plant, and tower-related drawing packages aligned to field and fabrication teams.

Jump

Structural Drafting Portfolio

Civil, structural, and multi-discipline drafting sets developed for accurate site execution.

Jump
Multi-Discipline Drawing Portfolio

Engineering & Fabrication DRG Library

Explore our complete drawing portfolio across HDPE piping, canopy, civil cast in-situ, steel structures, bins, blast furnace systems, pipeline, launching pad towers, and precast detailing for fast, accurate, and execution-ready delivery.

HDPE DRG

Small preview tiles for all drawings. Click any tile to open a larger view.

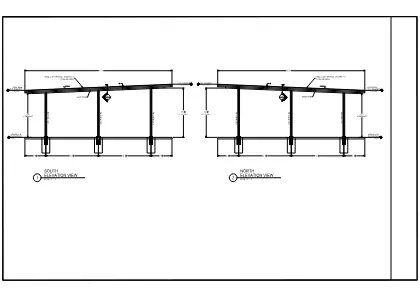
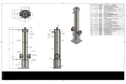
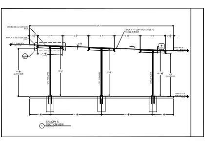
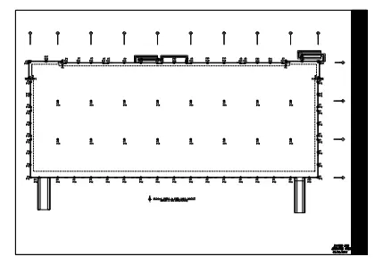
CANOPY DRG

Small preview tiles for all drawings. Click any tile to open a larger view.

US CIVIL JOB

Small preview tiles for all drawings. Click any tile to open a larger view.